Erhvervslejemål - Kælder, stue, 1 og 2. sal
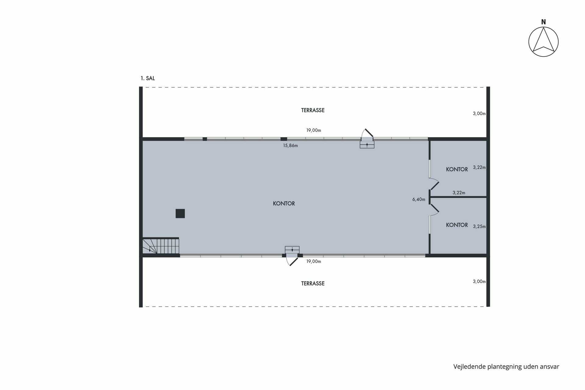
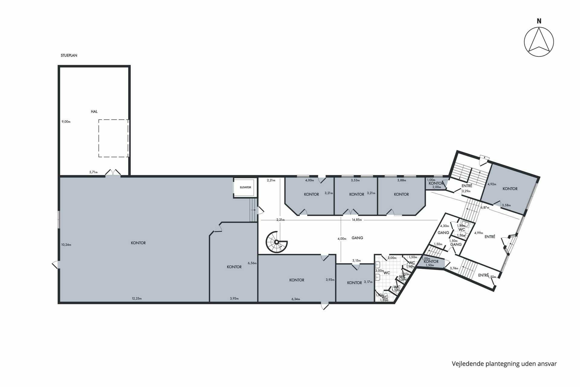
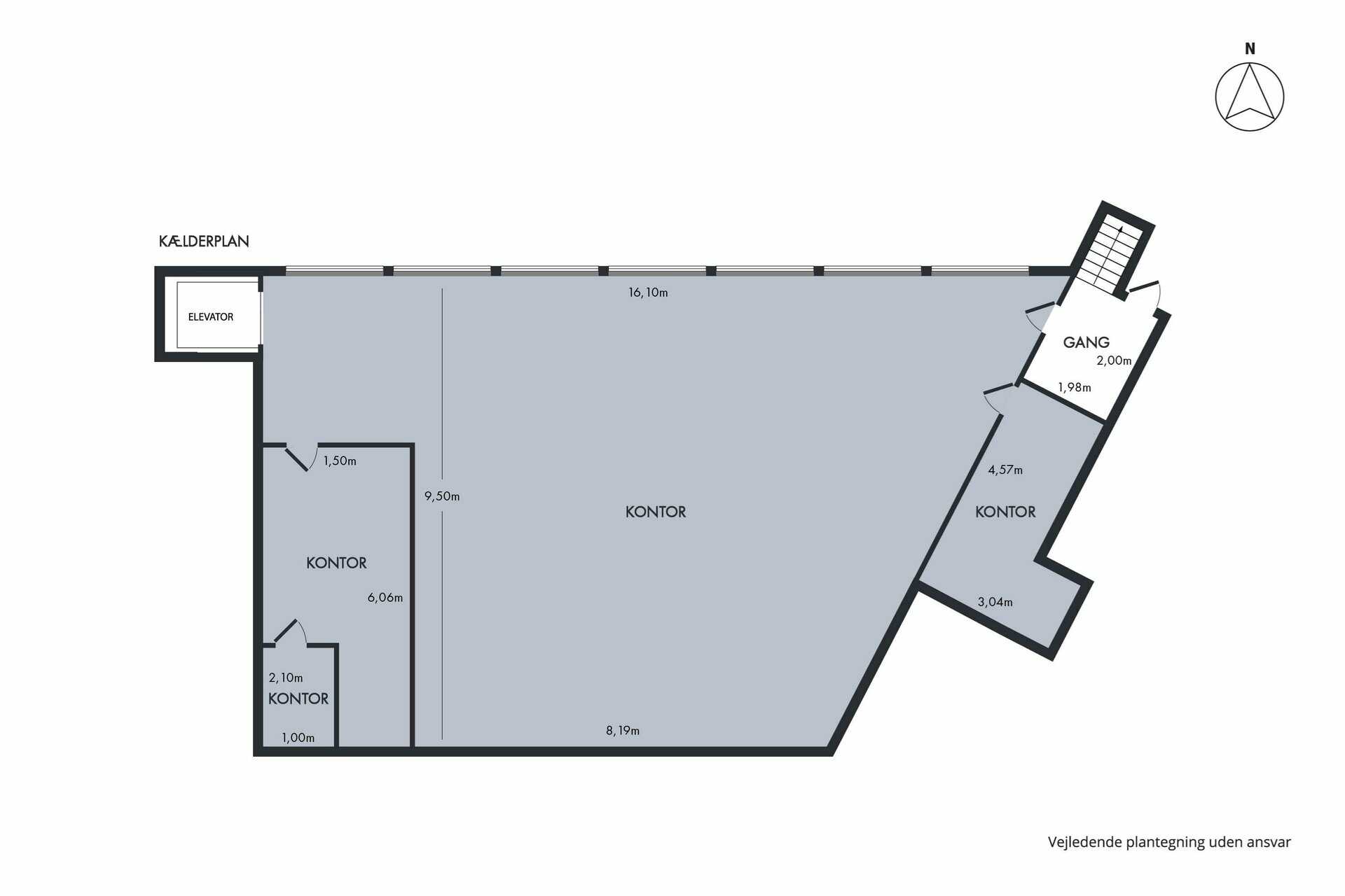
Erhvervsdelen på 928 m2 er indrettet med et lyst butiksområde, fordelingsgang, 18 kontorer i varierende størrelser til mange formål, toiletfaciliteter og elevator. Adgang til kontorerne på 1. salen sker via vindel-trappen, der er placeret i den bagerste del af lejemålet. Lejemålet på 2. sal er indrettet som ét stort regulært rum med skønt lysindfald, pænt mahognifarvet gulv og flotte synlige bjælker i loftet. Derudover forefindes et mindre toilet i trappeopgangen. Lejemålet har tidligere været udlejet til skole- og dagtilbuddet PMU (Praktisk Medhjælper Uddannelse) Basen, men kan også anvendes til rekrutteringsbureau, ejendomsselskab, kontorfællesskab/iværksættermiljø, kursusvirksomhed eller undervisningstilbud med behov for synlighed og gode parkeringsforhold. Lejemålet kan med fordel opdeles i flere enheder.
Lejemålet udbydes til en minimumsleje på 7.500 kr. + moms.
Beboelseslejemål - 1. sal
Ejendommens private lejemål på 98 m2 byder velkommen ved en praktisk fordelingsgang med indbyggede skabe til opbevaring af sko og overtøj, der fører dig videre ind til de øvrige rum. Her bliver du mødt af en dejlig stue med godt lysindfald og rigeligt med plads til indretning af TV-stue og opholdsrum. Fra stuen er der adgang til to gode værelser, hvoraf det ene værelse har egen altan med udsigt over de grønne områder bag ejendommen. Både badeværelse og køkken er af ældre dato, men fungerer upåklageligt. Køkkenet er tillige velindrettet med masser af skabsplads og belagt med et unikt gulv i funky design. Lejligheden henvender sig både til parret, singlen eller den lille familie, men kan også anvendes som delelejlighed for to venner. Til lejemålet hører der egen indgang fra Nørrebro og gode parkeringsforhold, som deles med erhvervslejemålet i ejendommen. Lejemålet er udlejet til gode og stabile lejere.
Bindslev er en mindre by i det nordlige Vendsyssel med 1.028 indbyggere (2023) i Hjørring Kommune. Det gamle Bindslev Gl. Elværk er sammen med den store fisketrappe byens hele store turistattraktion, hvor besøgende kan komme og høre mere om værkets historie og opleve det rige fiskevand med både laks og ørreder.
%20-%20DS.jpg?etag=%224364e-657ad5dc%22&sourceContentType=image%2Fjpeg&ignoreAspectRatio&resize=540%2B360&extract=0%2B0%2B540%2B330&quality=85)
Ejendomstype: Bolig og erhverv
Boligareal: 98 m2
Erhvervsareal: 928 m2
Kælder: 141 m2
Grundareal: 1.094 m2
Antal etager: 2
Energimærke: C/D
For nærmere information, spørgsmål eller fremvisning af ejendommen, kontakt ejendomschef Torben Haahr på mobil: +45 42 65 66 42 eller via e-mail til: info@proanno.dk.
Copyright © Alle rettigheder forbeholdes